Small toilet - the subtleties of arranging a small toilet
The problem of free space in the apartment is one of the most urgent. Sometimes in order to maximize living space, designers reduce the size of the restroom to a minimum. This has to be taken into account when choosing a toilet bowl, because a bulky plumbing fixture not only takes a lot of space, but will not look indoors.

About the size of sanitary appliances
There is a separate standard for sanitary ceramic devices, which in addition to the installation rules contains information on the dimensions of typical models.
So, according to GOST 30493-96, toilet bowls are divided into 3 groups by size:
- for children, the sizes of a small toilet bowl are 335, 405 and 290 mm respectively in height, length and width;
- for models with an added shelf, height (370, 400 mm) and length - 460 mm are standardized;
- for models with a solid-molded shelf, the norm establishes such dimensions: length — 605 and 575 mm (prior consultation with the customer is necessary), width — 340, 360 mm.

Note! When choosing a particular model, it is desirable to give preference to the variant with a solid-cast shelf. Models with an attached shelf complicate the process of installing a sanitary fixture.
It should not be thought that the above requirements apply to all types of toilet bowls. European models have a large variety of sizes. For example, sanitary equipment for large-sized people may have dimensions of 400x500x850 mm (width, length and height).
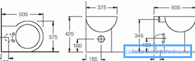
In toilet rooms of small sizes a mini-toilet can be used, the dimensions of such a sanitary appliance are: in length - 460-590 mm; in height - 260-335 mm, well, the width is equal to 290-350 mm.

Stand alone or built-in suspended models. The dimensions of such models are in the range: length - 470-580 mm, height - 390-420 mm, width - 355-370 mm.
It happens that the geometry of the room requires angular placement of sanitary equipment. In this case, the dimensions of the sanitary device are determined by the dimensions of the corner itself. In general, the dimensions of such models are approximately in this range: length - 725-790 mm, height - 740-815 mm, width - 345-375 mm.

What toilet for choose a small toilet
The main rule that a toilet should conform to for a small toilet is that it should not be too massive. Firstly, this will save precious space, and secondly, a visually miniature plumbing fixture will not “fall out” from the overall design of the room. Of course, at the same time it should remain comfortable and not cause inconvenience.
Wall-hung toilet is beautiful and effective
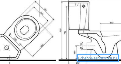
One of the best ways to kill several birds with one stone can be considered the choice of a hanging toilet model with an installation. A small hanging toilet will look perfect in a restroom of any size, and the ability to hide a toilet cistern will only benefit the overall style of the room.

This does not end its advantages. Suspended models, for example, do not require breaking the pattern of tiles on the floor, and cleaning the toilet becomes much easier, because there are no hard-to-reach places under it.
Note! When purchasing such a sanitary device, it is advisable to immediately purchase an installation for its installation. In this case, the frame is guaranteed to withstand the load from an adult.

The only disadvantage of this type of sanitary devices can be considered a rather high cost compared to the classical models.
The tank together with the installation system will cost no less than 6-7 thousand rubles, if we consider that the toilet bowl price is at least 2.5-3 thousand rubles, it is easy to go beyond 10 thousand rubles.
After installation, it seems that the sanitary fixture is attached directly to the wall and it may seem that the strength of such an attachment is low. This is nothing more than an optical illusion, because the sanitary device is attached to the steel frame. So the load of a few hundred kilograms is quite within the power of the suspended toilet.
If the installation work is done by hand, then it is necessary to provide easy access to the tank when installing the installation. Problems with fittings installed in it occur quite often, and since the tank itself is hidden by a partition, it will not be so easy to get to it. The issue of access to the inside of the cistern is solved by installing the revision window, in case of a breakdown, it will be enough just to remove it, after which you can replace the cistern's armature.

Conventional and mini toilets
On sale you can find the so-called children's models, the only difference between them from ordinary models is smaller. So, the size of the smallest toilets is 7-8 cm less than the usual dimensions. On the toilet, if you plan to install a small sanitary equipment, it may need to be slightly elevated above the floor level, because its height may not be sufficient for an adult .

The fact that in stores such sanitary appliances are often called children's does not make them unsuitable for an adult. The only thing that needs to be taken into account is that the size of the bowl is still smaller than that of an ordinary one, so for large-scale people such a choice cannot be called optimal. In addition, slightly narrower edges can cause discomfort when crashing into the body.
In this case, you can install and the usual toilet, and with the tank and sewer pipes to do just - hide behind a false wall. In a small room it will give a good visual effect. Due to the fact that the drain tank is hidden behind the partition, even a medium-sized sanitary device does not seem too large in a small room.
Note! In order for the repair of the flush tank to continue into torture in the false wall, it is necessary to provide for an inspection window.
The influence of the size of the toilet bowl on human comfort
Even the most ordinary toilet bowl with improper installation can deliver a lot of discomfort when using it. Also, when choosing you need to take into account the dimensions of the sanitary device.
Instructions for choosing a sanitary appliance include the following items:
- bezel should not be too narrow. Otherwise, it will bump into the flesh and the legs may become numb when sitting for a long time;
- its dimensions should be such that after it is installed, the person sitting on it feels completely relaxed, leg muscles should not be tense. As for the height of the device, it should be such that the legs do not hang in the air, but stand on the floor, knees bent at a right angle. If you use a mini-toilet, then under it, you may have to build a small podium;

- It is forbidden to place sanitary fixtures directly at the walls. It is believed that the minimum allowable distance to the door should be at least 0.6-0.7 m, and to the walls on the sides - 0.3 - 0.4 m. In this case, nothing will hamper the movement of a person.
In conclusion
When choosing a toilet bowl, sometimes the main criterion is not the price or even the appearance, but its dimensions, after all, a large-sized sanitary appliance is not suitable for every toilet. Small toilets can be considered a universal solution, such devices look great both in a large toilet and in a modest toilet, where every centimeter of free space is counted.
The short video in this article shows an example of installing a compact toilet in a small bathroom.